Un établissement reconnecté à son environnement naturel.
Maître d’ouvrage
Centre Hospitalier de La Loupe
Assistant maître d’ouvrage
ACOBA
Programme
Reconstruction et extension d’un EHPAD de 110 lits, PASA, cuisine, lingerie
Surface
2 900 m² SP neuf / 3 400m² Rehab SP
Montant
11,5 M€ HT
Équipe
Adquatio architectes (mandataire), SIBAT (BET, économiste), Process Cuisines (BET cuisine), Via Sonora (acousticien)
Mission
Base + DIAG + DLE + EAE + STD + FLJ + QUANT + SYNT
Phase
Etudes en cours, livraison prévue pour 2031
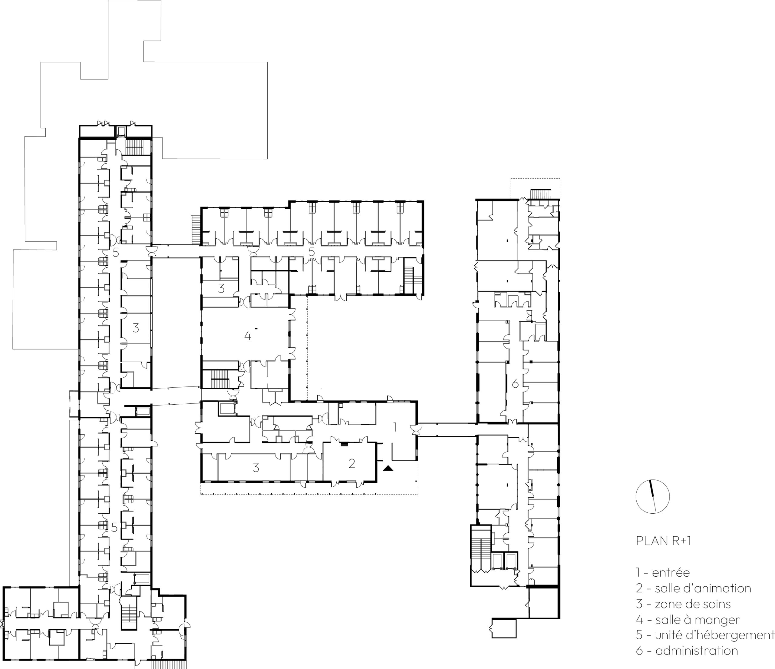
L’extension vient se placer au centre du système, sa façade principale bardée de bois accompagnée de son grand jardin arboré devient majeure, son architecture retrouve une image plus domiciliaire qu’hospitalière, réaffirmant une cohérence d’établissement.
L’extension centrale relie les bâtiments existants afin de retrouver une cohérence fonctionnelle.
La forme du plan en C permet d’offrir des espaces végétalisés dans cette continuité d’espaces boisés recherchée, le patio des générations ou le parc de la biodiversité, tous accessibles aux résidents.
Les chambres neuves ou restructurées font à minima 20 m², constituées d’une entrée protégée par un rideau pour l’intimité, d’une salle d’eau conforme PMR, d’un espace nuit affirmé par une tête de lit et un mur de couleur douce. La baie permet une vue dégagée sur un espace vert ou la forêt depuis le lit.



