Dans une ancienne carrière, l’Ehpad « Petit Pierre » annonce le développement du nouvel écoquartier.
Maître d’ouvrage
Ehpad Petit Pierre de Fay-Aux-Loges (45)
Assistant maître d’ouvrage
Avensia
Programme
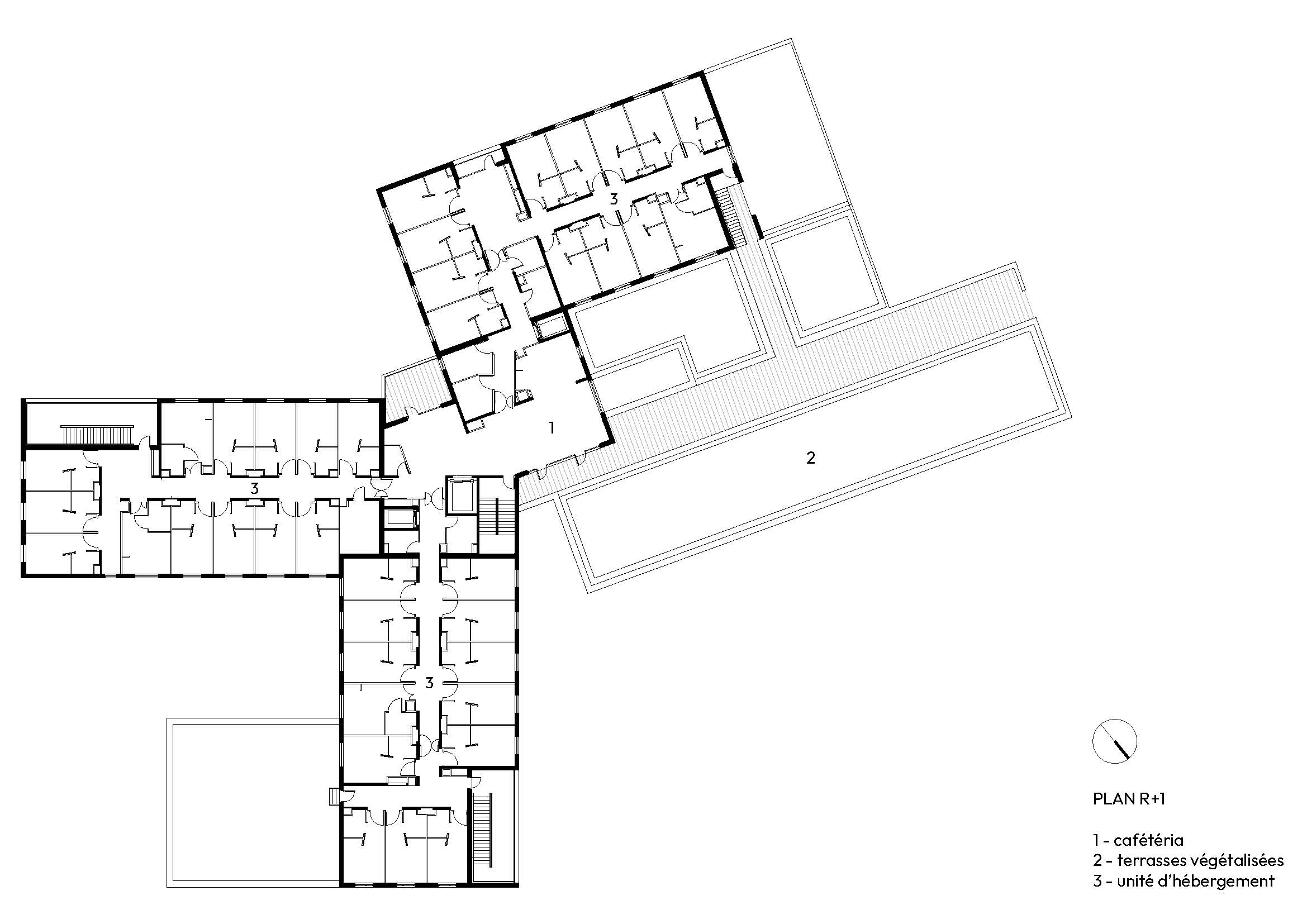
Ehpad 91 lits dont 12 lits d’UPAD, 6 unités de 13 lits et un accueil de jour de 12 places
Surface
4 645 m² SP
Montant
8,1 M€ HT
Équipe
Adquatio architectes (mandataire), Otéis (BET TCE), Process Cuisines ( BET cuisine), Viasonora (acousticien), Projectio (OPC)
Mission
Base + SSI + OPC + ACOUST
Phase
Livré en 2022

Dans les étages, les 3 unités en étoile se déhanchent pour éviter les effets de barre. La forme centrée sur les espaces communs et les points de montée permet une réelle efficacité de prise en charge et supprime les vis à vis des chambres pour mieux profiter des paysages.

La chambre de 20m², accessible PMR, profite d’une décoration douce étudiée avec les équipes de soins.
Une grande fenêtre avec allège vitrée permet aux résidents de profiter d’une vue sur le paysage depuis leur lit.


Les espaces de vie comme les salons d’étages et la salle à manger s’ouvrent sur de grandes terrasses protégées. Les protections fixes sont étudiées pour laisser pénétrer le soleil d’hiver tout en bloquant le soleil d’été évitant les surchauffes. L’aménagement intérieur a été étudié dans des teintes apaisantes et naturelles.

Notre implantation générale offre un fonctionnement optimal, avec les accès, visiteurs et logistique côté Nord, les espaces communs et jardins promenade au Sud.
Nous avons pris le parti de travailler sur trois niveaux, dans une logique d’optimisation des fonctionnalités et de raccourcissement des distances à parcourir, laissant ainsi un maximum d’espace en pleine terre.



